Der Neubau der Schweizerischen Bäckerfachschule Richemont wurde als Bestandteil eines Wettbewerbprojektes realisiert.
Mehr lesenDer Neubau der Schweizerischen Bäckerfachschule Richemont wurde als Bestandteil eines Wettbewerbprojektes realisiert. Das städtebauliche Konzept der neuen Bäckerfachschule reagiert mit einfachen und überzeugenden Mitteln auf die baulichen und räumlichen Gegebenheiten des Ortes. Die Dominanz des historischen Jesuitenhofes wird durch den niedrigen, drei geschossigen und von der Strasse zurückversetzten Neubau respektiert. Die Eingangsfassade mit dem teilweise gedeckten Vorplatz bildet einen ansprechenden Auftakt zur grosszügig gestalteten und natürlich belichteten Einganghalle.
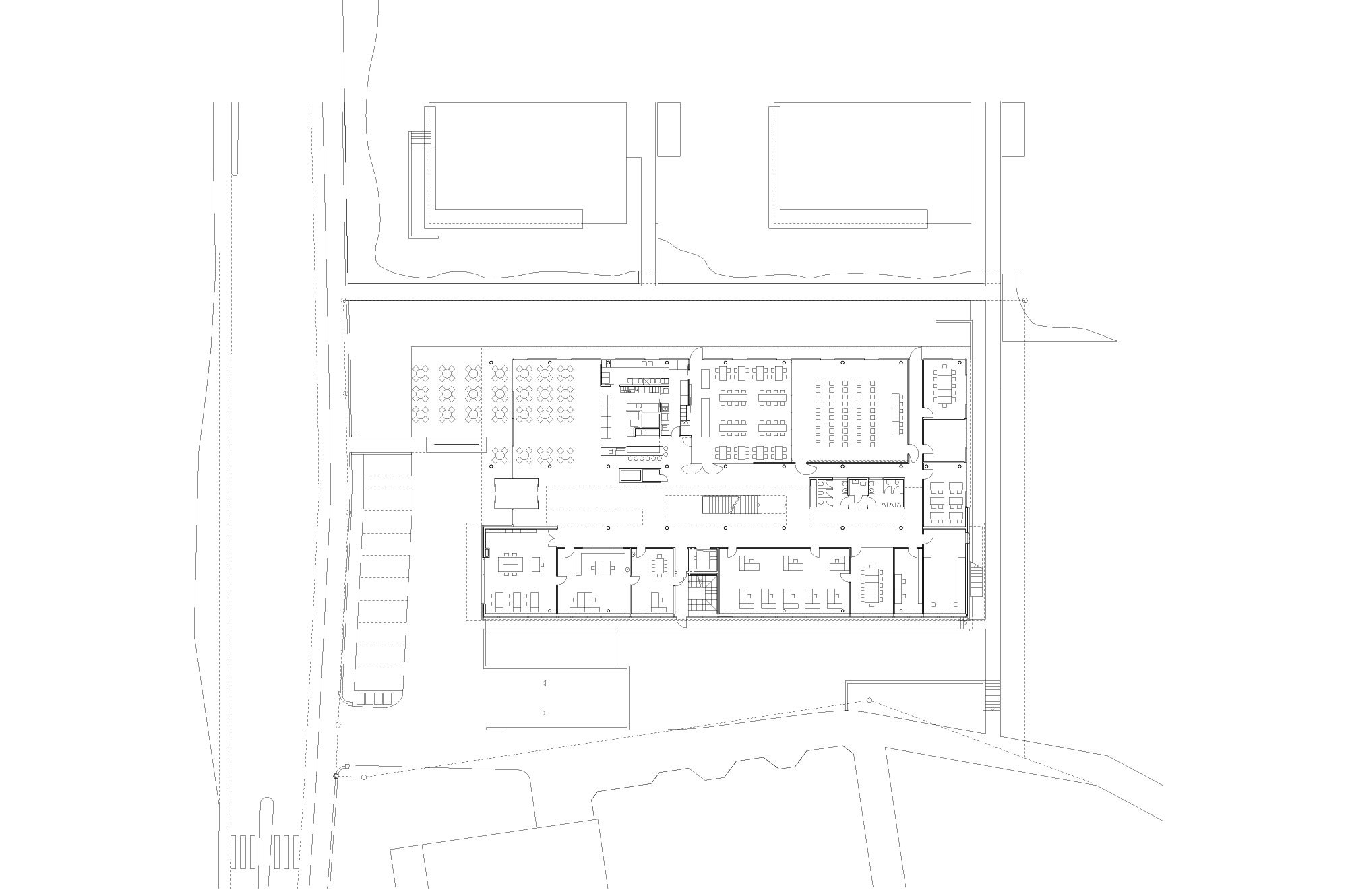
Das Erdgeschoss ist durchgehend grossflächig verglast um den einladenden öffentlichen Charakter mit dem öffentlichen Restaurant zu unterstreichen. Das multifunktionale Konzept des Erdgeschoss überzeugt durch die Möglichkeit, das Restaurant, die Bar und Cafeteria mit dem anliegenden Schulungsraum zum einem Mehrzwecksaal zusammenzulegen. Die Mediathek, die Administration, die Büroräumlichkeiten der Dozenten sowie Gruppenarbeitsräume reihen sich entlang der Halle auf.
Über eine zentrale Treppe begleitet von einem grosszügigen Innenhof erschliesst sich das 1. Obergeschoss. Als Arbeitsgeschoss gedacht reihen sich hier die Schulungs-und Demonstrationsräume sowie diverse Büroräume und Gruppenzimmer. Die praktischen Räumlichkeiten wie Backstube und Konditorei wird durch ein schräg gestelltes durchgehendes Oblicht erhellt.
Im 2. Obergeschoss befinden sich 14 Schlaf- und Arbeitsräume für jeweils zwei bis drei Studenten. Dieses Geschoss ist ebenfalls unabhängig von der Schule zugänglich und dient als Studentendepandance.
Die Fassade ist mit grossflächigen sichtbar verschraubten Aluminiumplatten verkleidet. Die Innenräume sind alle sehr hell gehalten. Nebst den weissen Wänden dominieren Aluminium, Chromstahl, Glas und der anthrazitfarbene Keramikboden im Erdgeschoss. Durch natürliche und künstliche Lichtführungen wird den verschiedenen Räumen je nach Nutzung einen eigenen Charakter verliehen.








