Das vorgeschlagene Projekt für den Neubau Wydenhof in Kriens sieht einen 4- geschossigen Baukörper mit Attika vor.
Mehr lesenSITUATION/STÄDTEBAU
Da das bestehende Haus wegen baulichen Schäden nicht saniert werden kann, wird ein freundlicher Neubau vorgeschlagen, der nachhaltig den heutigen Bedürfnissen der Bewohner entspricht. Aufgrund des architektonischen Konzepts; hinsichtlich Materialwahl, Grundriss, Volumen und energetischem Lösungsvorschlag soll die Lebensqualität sowohl im Haus, als auch die Qualität in Bezug auf die Umweltverträglichkeit aufgewertet werden.
Ausschlaggebender Faktor für die Lage und Form des Volumens ist die Position des Gebäudes in Bezug auf die an das Grundstück angrenzenden Kurve. Aus dieser besonderer Lage ergibt sich die organische Form des Gebäudes, das mit seiner unregelmässigen Südwestfassade die geschwungene Kurve des Grundstücks aufnimmt. Weitere Aspekte die sich daraus ergeben sind optimale Besonnung und reizvolle Ausblicke in die Landschaft. Hierbei fügt sich der Neubau sensibel in das bestehende, transparente Ortsbild von Kriens ein.
Das Haus steht auf der Grundstücksmitte: Dadurch ergeben sich wertvolle nutzbare Freiflächen. In dem vordereren, südlichen Teil stehen diese Flächen zur Gartennutzung, im nördlichen Teil für einen grosszügigen und Einladenden Eingangsbereich mit Brunnen zur Verfügung. Im nördlichen Teil des Grundstücks sind die geforderten Funktionsräume (Velo- und Gästestellplatz, und Zufahrt zur Einstellhalle) untergebracht. Das Haus ist von einer Grünzone umgeben, bei der die bestehenden Bäume und der alte Brunnen integriert sind.
DAS HAUS
Das Konzept des Hauses ergibt sich aus der Lage des Ortes, so besteht das Haus im nördlichen Teil aus einer Wand die das Volumen fasst und einen Rücken bildet. Dieser L- förmige Rücken wird durch die Ost und Nordfassade gebildet. Diese umfassen die organische Südwestfassade. Die Südwestfassade bildet eine Antwort auf die geschwungene Kurve der Zeughausstrasse und hat mit ihren Terrassen und Wintergärten einen einladenden, transparenten und freundlichen Charakter. Die Südwestfassade ist offen, mit grossen Fenstern und Schatten spendenden Veranden.
Diese Erscheinung soll an das traditionelle „Fachwerkhaus“ erinnern. Die Struktur die durch die Konstruktion gezeigt und durch Farb-und Materialwahl unterstrichen wird versteht sich als Reminizenz an das bestehende Haus des Wydenhof.
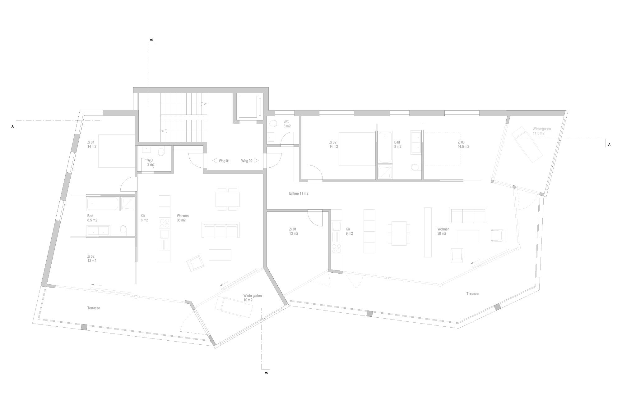
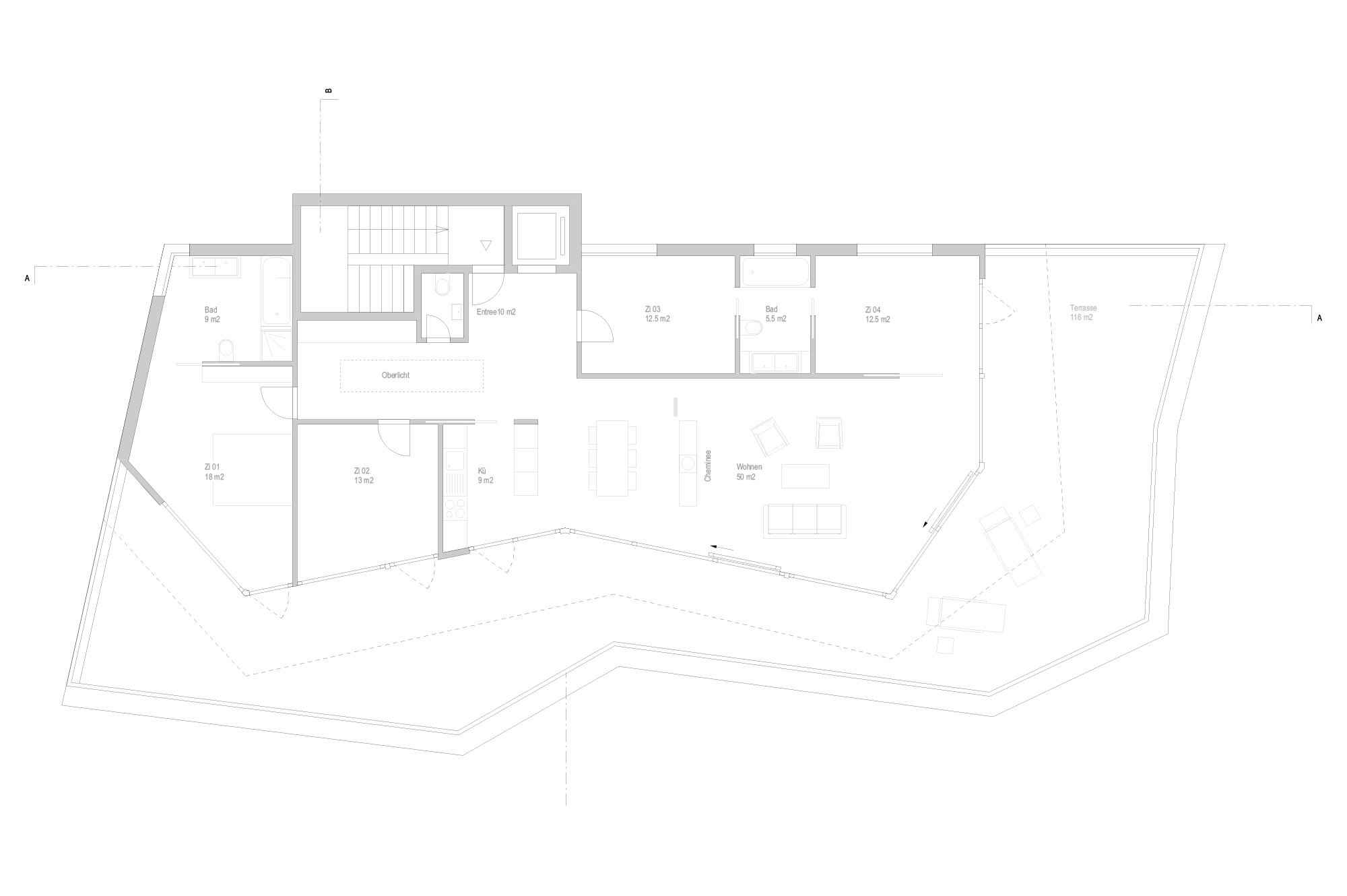
Aus der unregelmässigen Fassade ergeben sich spannende Räume für den Benutzer und optimale Ausrichtung der Wohnungen. Aus der Lage der Wohnungen ergibt sich der bestmögliche Grad von Besonnung des Wohnraums und Aussicht in die umliegende Landschaft. Alle Wohnungen haben grosszügige Veranden und eingebaute Wintergärten gegen Süden. Die Konzeption der Grundrisse ergibt grösstmögliche Flexibilität, sodass 3 1/2, und 4 1/2 Zimmerwohnungen vorgesehen werden. Auf dem Dachgeschoss befindet sich eine 5 1/2 Zimmerwohnung mit grosser Sonnenterrasse.
Jede Wohnung hat durch die grossen Veranden eine starke räumliche Verbindung zwischen Innen- und Aussenraum. Diese Aussenräume sind in die Wohnräume integriert und sorgen für zusätzliches Licht und vergrössern bei Bedarf den Wohnraum.
Hervorgehobenes architektonisches Element sind die Wintergärten, die durch ihre Plastizität, als Körper verstanden werden. Diese Elemente dienen zur Gliederung der Fassade , bilden Schwerpunkte und verstärken damit den Charakter und die Aussenwirkung des Hauses .
Die Wohnungen sind so aufgebaut, dass die Wohnbereiche mit Wohn- Essräumen und Küche und Wintergarten nach Süden orientiert sind. Die Schlafbereiche sind jeweils nach Nordwest oder Nordost gerichtet . Jede Wohnung beinhaltet eine moderne, freistehende Küche und offene Essbereiche. Durch Schiebetüren wird ein grösstmögliches Mass an Flexibilität erreicht.
Im Untergeschoss befinden sich 14 Einstellplätze und die benötigten Funktionsräume für Bewohner und Benutzer. Im Erdgeschoss können flexibel 1-2 Büros oder Gewerbebetriebe eingerichtet werden.
MATERIALISIERUNG, ENERGIEKONZEPT UND KONSTRUKTION
Bei Materialisierung, Konstruktion und Energiekonzept wird eine Verbindung von traditionellen Materialien und moderner Technologie angestrebt, um diesen historischen Ort neu zu interpretieren. Das Gebäude wird 100% aus erneuerbaren Materialien erbaut. Die Konstruktion ist ein moderner Holzbau, welcher in der Fabrikhalle produziert wird und auf der Baustelle sehr schnell montiert werden kann.
Der Bau soll nach Minergie-Standard gebaut werden, was einem Viertel des üblichen Energieverbrauchs eines gleich grossen Standardhauses entspricht. Eine Wärmepumpe produziert Wärme für die Niedertemperatur- Radiatoren. Im Sommer können diese auch gekühlt werden. Unterstützt wird die Anlage durch Sonnenkollektoren auf dem Dach und Photovoltaik in der Fassade.
Aussteifende Elemente sind die beiden Wandscheiben der Ost und Nordfassade sowie der betonierte Treppenkern.
Die Decken und Wände sind in Holzskelettbauweise konstruiert. Die Südwestfassade ist mit „Parklex“ verkleidet. Diese Holzfurnier beschichtete Material weißt eine hohe Witterungsbeständigkeit auf. Die Nordwestfassade ist mit Schindeln verkleidet. Durch das in rot- weiss Tönen gehaltenen Neubaus ergibt sich ein hoher Wiedererkennungswert und eine Referenz an alte Bautradition des ehemaligen Wydenhofs.






