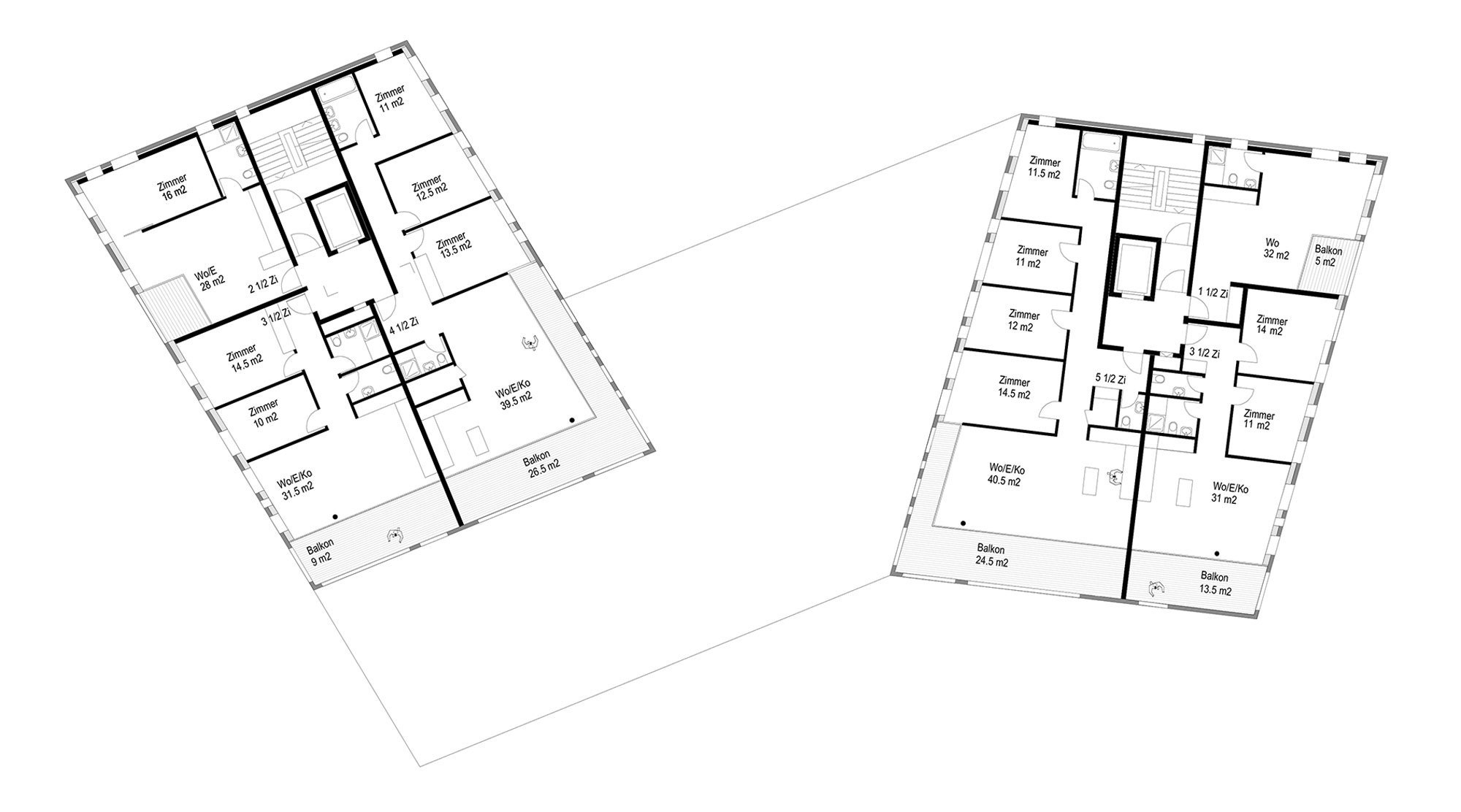
Das Projekt ergänzt die Hochhaussiedlung Alpenblick aus den 60er Jahren mit zwei zeitgenössischen, ökologisch sensiblen Hochhäusern.
Mehr lesenDie Neubauten nehmen in ihrem Masstab Bezug zu den umliegenden Gebäuden und schaffen durch ihre klare Setzung einen wertvollen urbanen Raum.
Die beiden hohen, schlanken Volumen bilden durch ihre präzise Platzierung entlang der nördlichen und westlichen Baulinien, einen städtebaulichen Akzent an der Kreuzung Chamerstrasse – Zugerstrasse und vervollständigen gleichzeitig die Siedlung Alpenblick.



