Das denkmalgeschützte Objekt ist teilweise abgerissen und originalgetreu wiederaufgebaut worden.
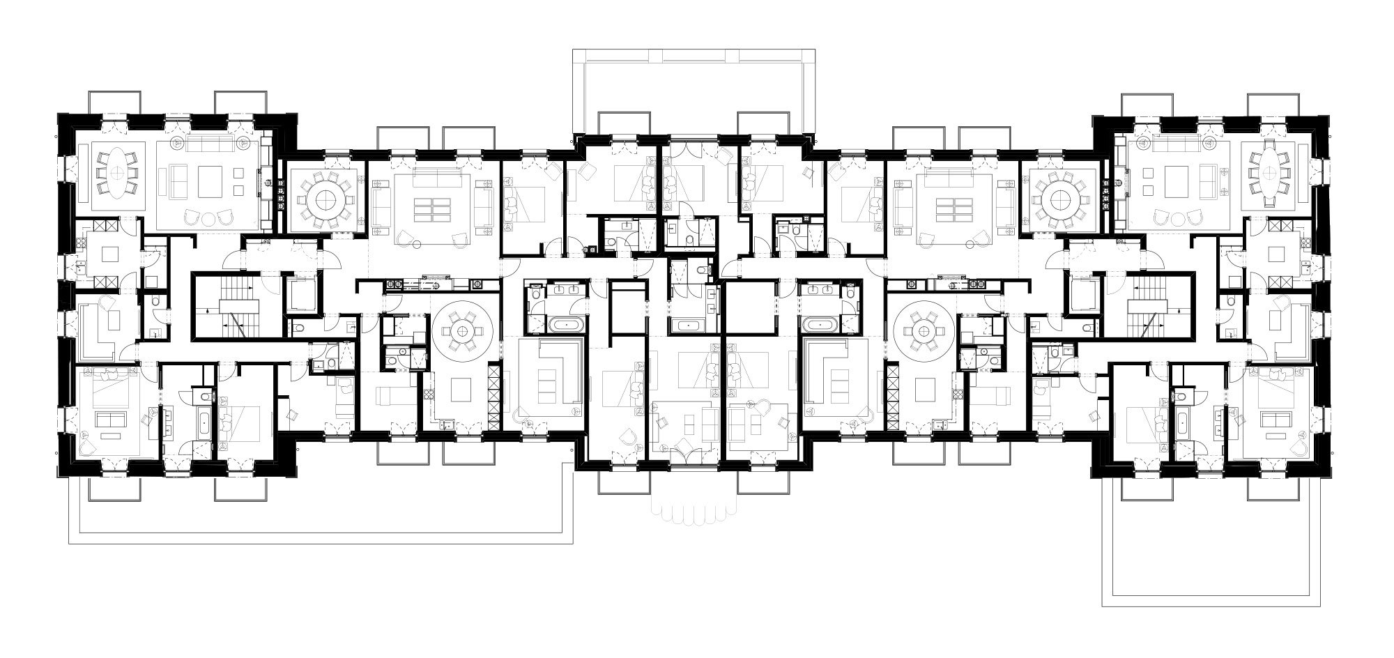
Mehr lesenDie kleinteiligen Raumaufteilungen des ehemaligen Hotels sind übernommen und jeweils aufgelockert worden. Ein klares Innenarchitekturkonzept verleit der Residence einen neuen Glanz. Die Architektur ist so konzipiert, dass sich die Residenzen ganz einfach miteinander verbinden lassen. Die Varianz reicht von 80 Quadratmeter grossen Residenzen, über grosszügige Maisonette-Suiten, bis hin zum spektakulären Penthouse mit 800 Quadratmetern Wohnfläche. Arbeiten ist ebenfalls in den Suiten möglich, ausgesucht Plätze mit viel natürlichem Licht lassen das Arbeiten mit dem Wohnen verbinden. Die Aussicht Richtung See liegt im Fokus. In nördlicher Richtung liegt den Grand Residence Suiten der imposante Vierwaldstättersee mit Rigi und Pilatus zu Füssen. Auf der Südseite geht der Blick in die Weite der sonnigen Alpenlandschaft, unterbrochen von den Wiesen und Wäldern des Bürgenstock Resorts. Das Grundrezept ist das gleiche wie vor rund 100 Jahren: exklusiver Komfort für unterschiedliche Gästegruppen.
Die denkmalgeschützte Hülle des ehemaligen Grand Hotels entspricht heute immernoch dem Bestand von früher. Die Eckelemente wurden erhalten. Der mittlerte Hauptkubus und die Verbindungselemente der Volumen sind abgerissen und wiederaufgebaut worden. Die Wände in den Eckresidenzen lassen die Geschichte spürbar werden. Die Setzung der Fenster und Ecklisenen entsprechen dem Bestand– heute modern und neu umgesetzt.




