Searching for a new location for their future headquarters, Emmi, a continuously growing milk processor, chose the property of its former “butter headquarters” on Landen¬bergstrasse in Lucerne, on the left shore of the lake.
Read MoreEmmi used the location as its production site for milk and dairy products for decades. The existing buildings have been removed and replaced by the new headquarters and additional residential Buildings.
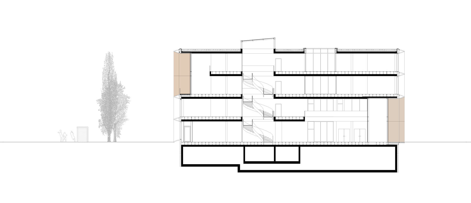
The new Emmi Group Headquarters, offering 200 workplaces, take the form of a stand-alone building facing a piazza. The exterior is dominated by its unique grid-like façade in front of a glass curtain wall. The building has a square footprint and four floors (with 3.5m clear height). It appears very open and is bathed in natural light thanks to its double height spaces.










